- 4 Beds
- 3 Baths
- 190 m² Built
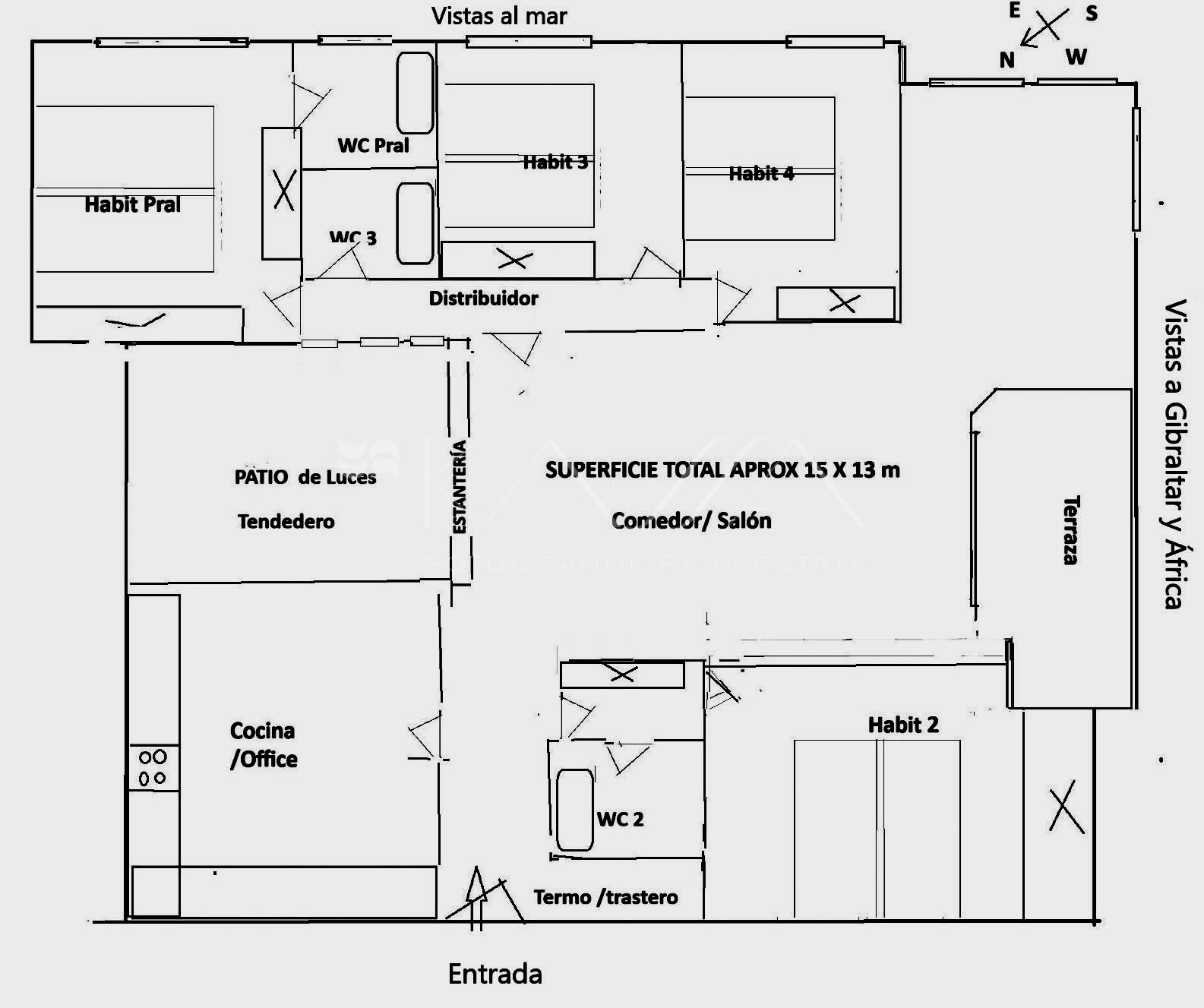
Apartment for sale and rent in Paseo del Mar, Sotogrande Costa with 4 bedrooms, 3 bathrooms and has garage (private) and garden (communal). Dimensions: 190m² built and 170m² interior.
This property, orientation southeast, has the following facilities: beach side, air conditioning, balcony, fully furnished, sea view, fitted wardrobes, gated community, lift, good condition, marble floors and security service 24h.
Contact Ref. KSS-648
All features of this villa
- Ref. KSS-648
- Type, Apartment
- Sotogrande
- 4 Beds
- 3 Baths
- 190 m² Interior
- For sale price 1.200.000 €
- EPC In process
- Beach Side, Air conditioning, Balcony, Fully furnished, Sea view, Fitted wardrobes, Gated community, Lift, Good condition, Marble floors, Security service 24h